
Residential in Winter Haven/FL
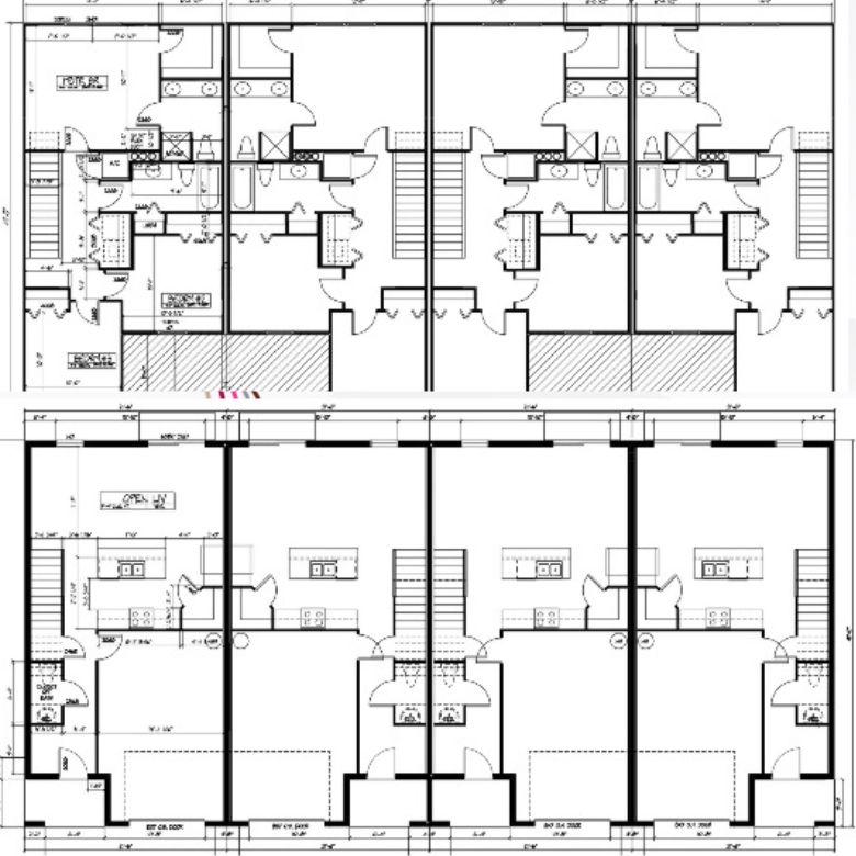
Residential development of 256 Townhouses with a floor plan of 3 bedrooms and 2.5 bathrooms, totaling 1400 sqf.
This condo will be 3 minutes away from the shopping center with all the major stores and only 10 minutes from one of Florida's premier amusement parks, Legoland.
We have two types of floor plans, one with 4 bedrooms and 2 bathrooms with 1833 sqf and another with 4 bedrooms and 3 bathrooms with 1865 sqf, bringing excellent comfort to families who are looking to buy a new home.

Residential in Citrus Springs/FL
By offering affordable, well-built housing near employment hubs, schools, and essential services, we create real solutions for those who need it most. Whether it's a hard-working family, a young couple, or someone looking for stability, our ventures open doors to dignity, comfort, and long-term opportunities.
We have two types of floor plans, one with 4 bedrooms and 2 bathrooms with 1833 sqf and another with 4 bedrooms and 3 bathrooms with 1865 sqf, bringing excellent comfort to families who are looking to buy a new home.
See the configuration of our investment

ATTIC
Storage space
Voluptate velit esse cillum dolore eu fugiat nulla pariatur. Excepteur sint occaecat.
FIRST FLOOR
Part of rest and relaxation
Voluptate velit esse cillum dolore eu fugiat nulla pariatur. Excepteur sint occaecat.
GROUND FLOOR
Living room + garage
Voluptate velit esse cillum dolore eu fugiat nulla pariatur. Excepteur sint occaecat.
